
山水國際 | 流光千年印古意,四壁浮影悟中采

本案的業主是一家企業的老板,事業有成,白日里工作繁忙,因此希望這個新家是能讓自己安心停泊休憩的港灣,設計師便選擇了新中式風格來為他打造一個寧靜又大氣的居家之所。
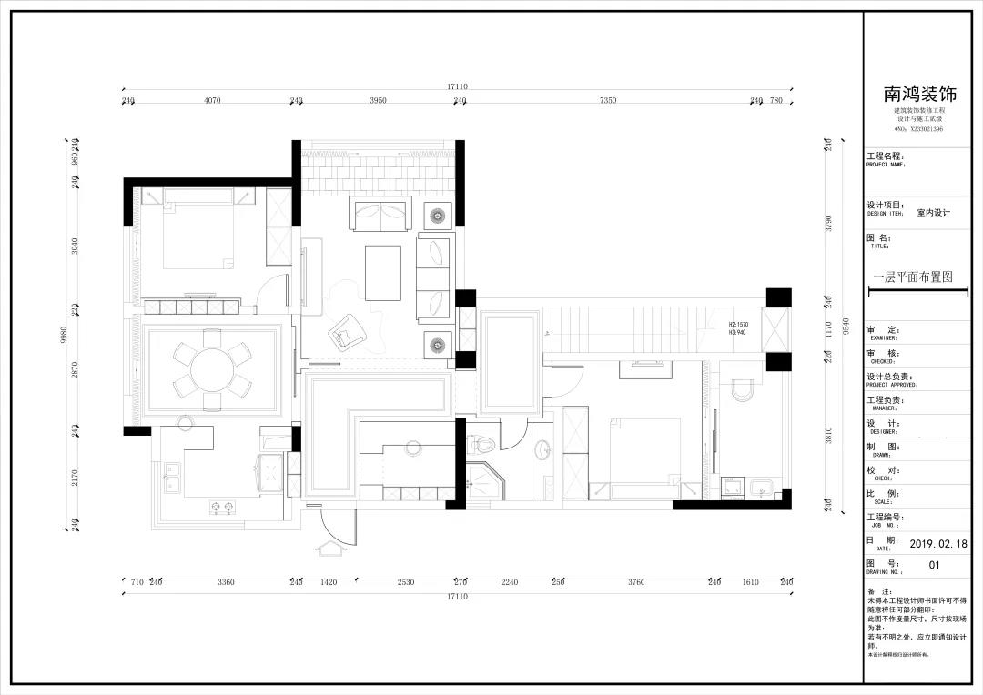
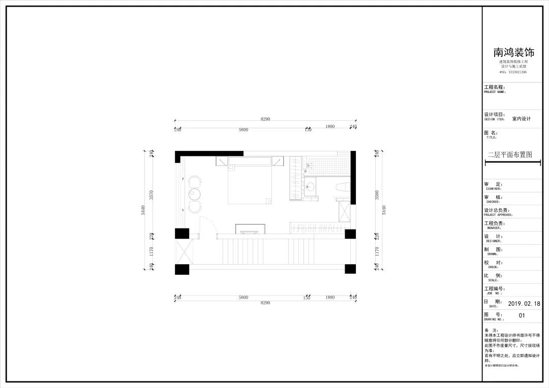
戶 型 圖 設計說明: 1、客廳包進陽臺做了地臺; 2、使用空間中均單獨設置收納空間; 3、注入中式的風雅意境,使空間散發著淡然優雅的人文氣韻。 客 廳 客廳呈圍合式布局,在硬裝造型與多數家具的選擇上均是現代風格,寬敞明亮,簡潔大氣,電視背景墻與茶幾的漂亮石紋令人印象深刻,一黑一白,對比鮮明。 空間內嵌入了許多金屬細節,如吊燈、茶幾、沙發背景墻等,精致考究。 客廳望向會客區與玄關的視角。視野一覽無余,通透感強。角落兩盆綠植起點綴作用,增添生機。 會 客 區 會客區域設置在進門口,與玄關結合,對業主來說是個很方便的設計,收納空間也大。區域與客廳之間以過道相連,保持足夠的延續性。 餐 廳 餐廳設計嵌入式收納柜,并在與人視線平齊的地方內凹形成展示區域,拓展功能。大型冰箱外移,不占用廚房的空間。 臥 室 主臥包進陽臺,采光充足,淺色的床體與梳妝臺區域柔化了空間,而床頭柜與電視柜的黑色柜面則讓空間更多了一份沉穩。 次臥,淺灰的墻面與溫潤的木地板傳遞出安穩從容的氣質,潔白的紗簾透出光影,還原出生活的自然與本真。 兒 童 房 兒童房設計有外太空飛船圖案的背景墻,創造出了童趣滿滿的生活空間。 | 地址:山水國際 | 面積:170㎡ | 風格:新中式 | 設計施工:浙江南鴻裝飾












免費
免費申請戶型規劃
專屬設計師免費1對1全程服務
已經有3777人申請
24小時免費咨詢電話
400-8800-618
你家預算
108080元