
【128㎡包豪斯】關鍵詞:理性、克制、有趣!

在包豪斯美學的世界中,理性、功能是最重要的法則。
包豪斯理念不僅追求形式上的簡約,更強調形式與使用功能的緊密結合,以簡潔而高效的空間樣態,達成一種切合本質的美學呈現。
本案這套精裝改造,使用極簡硬裝搭配線條明晰、工業美學鮮明的軟裝,以簡約又有層次的手法描繪適于當下的布局,點點的跳色與藝術感的細節,在整體調性中藏入了諸多活力和趣味。

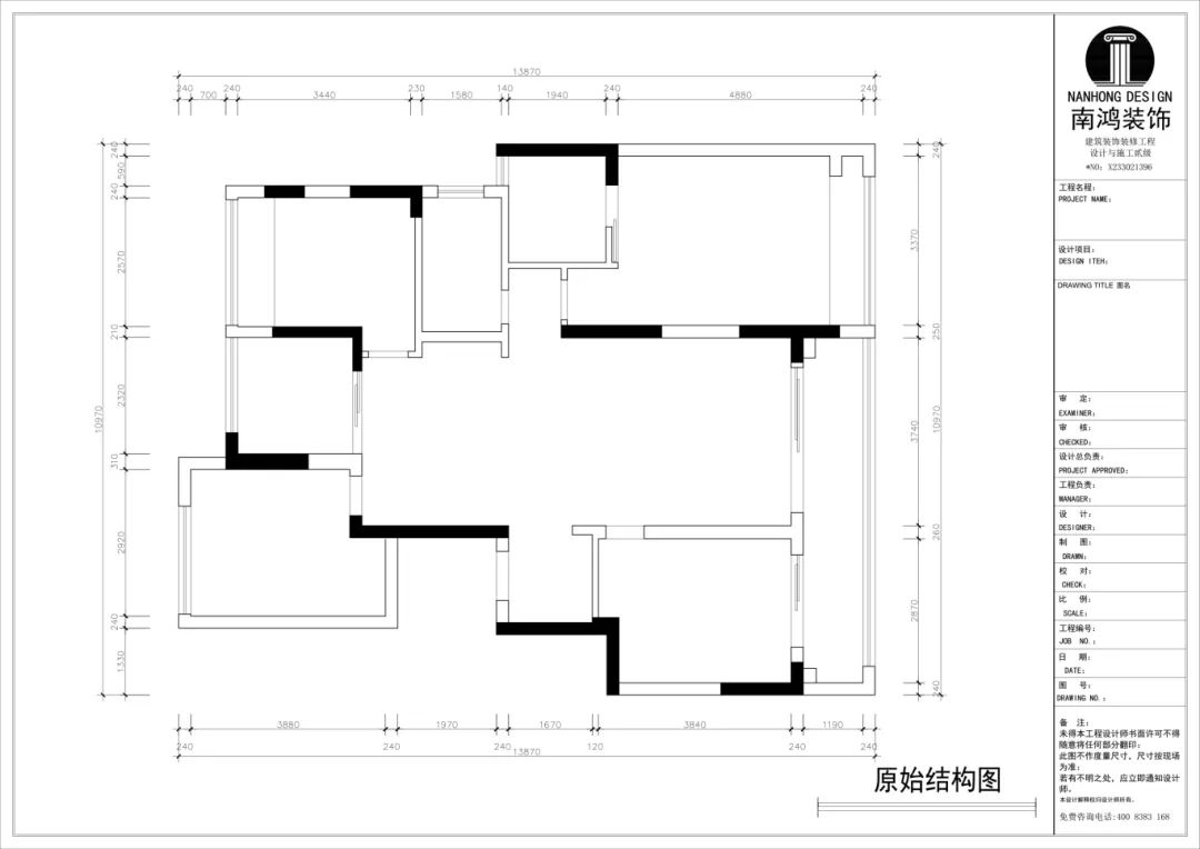
· 改造前


· 改造后
?原始戶型 優點:四葉草戶型,功能分區明確;南北通透,客廳采光好,還有大陽臺。 缺點:玄關較壓抑;次臥與電梯廳相鄰,有噪音;電視背景面較小等。 ?設計改動: ①將原有玄關柜拆除,設計錯位柜子,增強玄關功能性。 ②南次臥房門做成隱形門,與墻面融為一體,擴大電視背景面。 ③將陽臺包進并增設一個吧臺,豐富公區域場景。 ④餐邊柜上下柜深度利用錯層,既提升收納效率,又能滿足電器的使用需求。 ⑤主臥改變床頭朝向并增設隔斷,避免直對衛生間,又增加了衣柜空間與梳妝臺區域。

玄關 01
Hallway


玄關利用錯位的柜子處理,分隔開鞋柜與衣物收納區,既提升美觀度,又優化了儲納邏輯。
米白的統一色調烘托溫潤感,玄關端景面圓潤過渡至電視背景區,延伸視線與柔和力,亦大大拓展公區域的空間感受。
客廳 02
Living Room


包豪斯的空間注重簡潔線條、幾何構圖以及材料本身的質感呈現,尤其在家具選擇上,風格化更加的強烈,糅合優雅與冷峻,讓人印象深刻。
客廳整體硬裝簡素,選用經典黑色皮沙發,搭配中古模塊斗柜、亞克力邊幾與金屬釣魚燈等家具,展現潮流又有個性的品味。


電視背景墻憑借通體的淺色與無把手的工藝處理,包容超大儲物量的同時不令視覺壓抑,同時次臥房門做隱形設計,將背景面完整延伸。

陽臺設計有陽臺柜,中部開辟操作區,底部留空方便掃地機器人出入,同時延展出簡易一字型吧臺,作為休閑茶歇區,舒緩身心、補充能量。
餐廳 03
Dining Room



餐廳在軟裝上加入了黃藍撞色與活力的洞洞元素,頂部懸掛一盞銀色日光輪吊燈,縈繞時尚的設計感、輕盈的線條美與多姿多彩的藝術氛圍。

白色與木色組合的餐邊柜,中部奢石背景為空間平添雅致,吊柜下方還做有置物擱板,日常拿取杯盞、餐具也更加方便。
臥室 04
Bedroom


主臥調轉了原本的床體朝向,避免直對衛生間,并砌筑一道透景式的隔斷,局部鏤空的造型處理,既弱化隔斷墻的厚重,提升通透性,又能有效保護室內隱私。



暖棕色系帶入慵懶和愜意,空間輪廓簡潔明快,踏入的瞬間,所有的情緒便能找到自洽的平衡點。梳妝臺嵌入衣柜,節省空間,一體成型的流暢設計,在有限的區域內創造了不俗的質感。
書房 05
Study

書房沿墻打造了可供雙人同時使用的書桌,懸浮的形態輕簡利落,搭配吊柜補充收納,玻璃柜內添入燈帶,營造居家的氛圍感。
—
·項目信息·
項目名稱:望林府
設計風格:包豪斯
項目類型:四室兩廳
項目地點:中國·杭州
項目面積:128㎡
套餐類型:精裝房改造
項目服務:設計·施工·硬裝·軟裝 全案設計
設計單位:浙江南鴻裝飾
施工單位:浙江南鴻裝飾
免費
免費申請戶型規劃
專屬設計師免費1對1全程服務
已經有3776人申請
24小時免費咨詢電話
400-8800-618
你家預算
108080元