
154㎡現代極簡,客餐合并+全屋留白,清爽“素顏”太迷人!

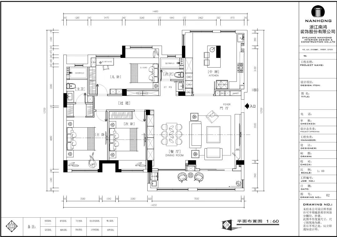
項目信息 PROJECT INFORMATION 地址/ 中天珺府 城市/ 中國 杭州 戶型/ 三室兩廳 面積/ 154㎡ 風格/ 現代極簡 設計施工/ 浙江南鴻裝飾 作品前言. ABOUT HOME 本案是供二老居住的房子,年輕的三口之家偶爾會過來留宿。對于新家,他們更多關注的是極簡的視覺感受,以及靜謐、舒適的居家體驗。 戶型方案拆開了原始的四室兩廳布局,重組為三室兩廳的結構,空間去除所有冗余的裝飾,盡可能地擴大其留白,以簡約的線條構建秩序。 極簡的空間,搭配貼合居者氣質的家具陳列,設計用一種真誠而純粹的態度,回應了屋主的深度訴求。 戶型方案. LAYOUT DESIGN 實景呈現. CASE APPRECIATION 客廳 // 客餐廳結合出開放式公共區,以沙發為界,兩塊區域相對均衡,視感明亮開闊,在提升空間互動性和體驗感的同時,也增強了整體的采光與通風。 區域以弧面的造型進行頂部過渡,弱化了層頂高低起伏帶來的斷裂感,點線光源引導視線追蹤結構的轉換,給予空間極大的自由感與流動性體驗。 空間設置低矮的座具,去掉茶幾,將活動區域擴展的同時拉伸了層高。電視背景墻留白處理并做簡單的層次,與素白的頂面有一個很好的視覺連貫,進一步為空間烘托質樸的氛圍感。 餐廳 // 餐廳與客廳一體連通,無縫相接。餐桌椅的款式依據業主的喜好挑選,木質與藤編的材質令空間更顯自在和沉靜。 餐廳置入了充足的收納空間以及樂高的展示柜,避免空間呆板,同時讓業主的個人喜好也有一個完美的展現。 廚房 // 廚房做敞開,中間柱子部分結合中島臺,讓空間的利用率得到最大化。白色的櫥柜儲物柜搭配淺灰色瓷磚,呈現了利落規整的視覺效果。 主臥 // 主臥以木質床具和留白背景墻搭建起質樸溫和的場景,衣帽間與主衛區相連,功能轉換自然流暢,讓生活也充滿便捷的舒適性。 青少年房 // 兒臥以“彈性”作為設計的關鍵詞,為孩子的成長與夢想預留了充分的空間。 衛生間 // 衛浴區延續清爽的感受,用簡潔明朗的塊面構成,并實現全面舒適的功能設計。




















上一篇:夏天悄悄地過去了,而我還在選空調
免費
免費申請戶型規劃
專屬設計師免費1對1全程服務
已經有3777人申請
24小時免費咨詢電話
400-8800-618
你家預算
108080元