
【印象苕溪】極簡與現代的詠嘆調

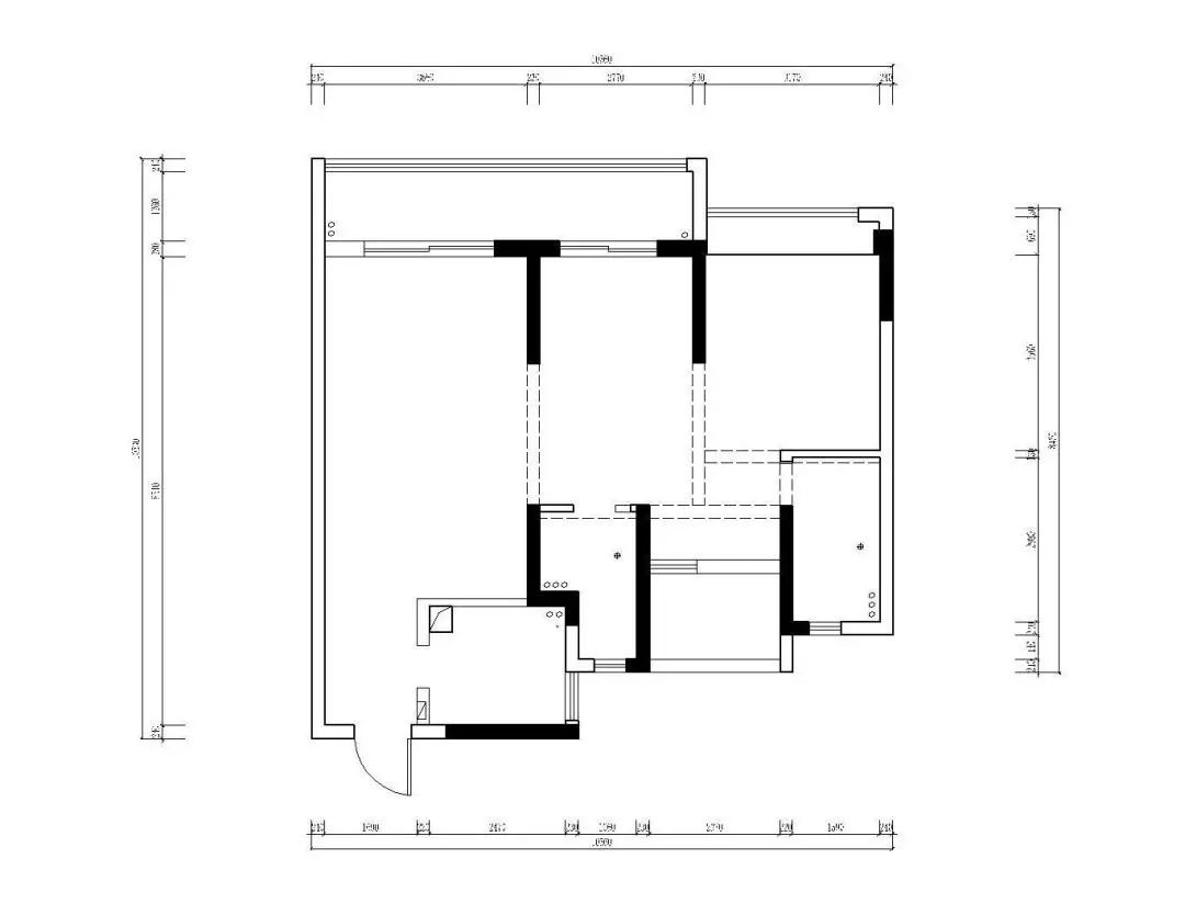
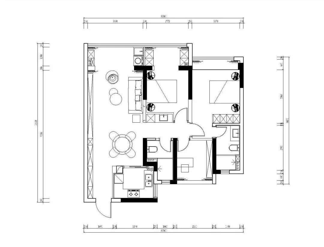
項目信息 / 地址:印象苕溪 城市:中國 杭州 戶型:三室兩廳 面積:100㎡ 風格:現代極簡 設計施工:浙江南鴻裝飾 本案的男女業主從事暖通行業,年齡40+,性格健談,本次裝修與我們也算是二次合作了,整體項目的推進非常順利。這套房子地處臨安,業主常住杭州市區,所以基本就是用于一家人節假日小住。 空間以暖灰色系為主顯出柔和與溫馨,搭配黑白色系用以提升高級感。項目整體的落地性非常強,基本上都是根據效果圖還原的,溫暖感性的場景設計,為居者營造松弛治愈的心靈雅居。 【戶型解析】 戶型功能區齊全,缺點是廚房采光不是很好,次衛格局不太方正。 設計改動: ①廚房門洞調整位置,增加采光; ②客廳陽臺包進,增加客廳進深; ③次衛臺盆設計在過道,借次臥空間解決了原格局次衛缺角問題。 入戶即以無把手的玄關柜營造干凈的視覺,并添加入換鞋凳、掛衣鉤等功能,功能劃分清晰。 低飽和度暖灰色的空間基調,呈現柔和質樸的外觀。簡約的線條與幾何架構,在形成秩序的同時,也賦予了空間足夠靜謐的氣氛。 客餐廳一體化結構,將空間的聯結性與開放性做了更為具體的詮釋。沙發背景結合了擱板收納設計,視覺上形成層次起伏感,釋放空間的個性主張。 電視背景墻以懸浮的形式呈現,給人輕盈之感。無主燈設計營造氤氳而溫暖的光感,溫馨的居家氛圍輕松拿捏。室內收納藏露有序,利落地歸置所有居家物品。 餐廳,餐桌椅的色彩元素與周圍環境形成呼應,簡約的線條組合讓用餐環境呈現純粹而高級的觀感。 獨立的中廚空間,能夠避免烹飪時油煙四溢的問題。白灰的色彩組合顯出層次,同時依靠玻璃移門帶來的外部采光,也能讓內部空間足夠明亮。 樸素至簡的氛圍從公區域一路延伸到私密臥室,深淺色和諧的配比與適度的不對稱設計帶來十足舒適感。飄窗布置出休閑觀景區,開闊視野,凈化心靈。 溫柔的情緒再一次經由舒適的光感和舒緩的色系被充分感知,人與空間展開深入的對話,就此啟開一夜好眠。 次衛做干濕分離,臺盆區設計在過道提升整體的空間利用率,不規則的鏡子也增添了一些活潑和趣味。




















免費
免費申請戶型規劃
專屬設計師免費1對1全程服務
已經有3777人申請
24小時免費咨詢電話
400-8800-618
你家預算
108080元